









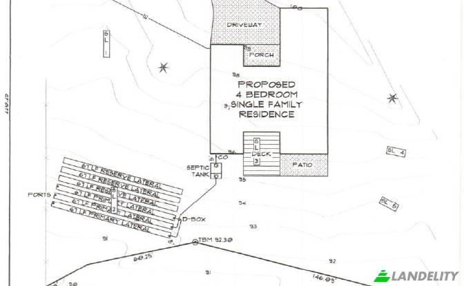
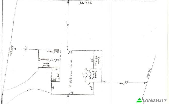
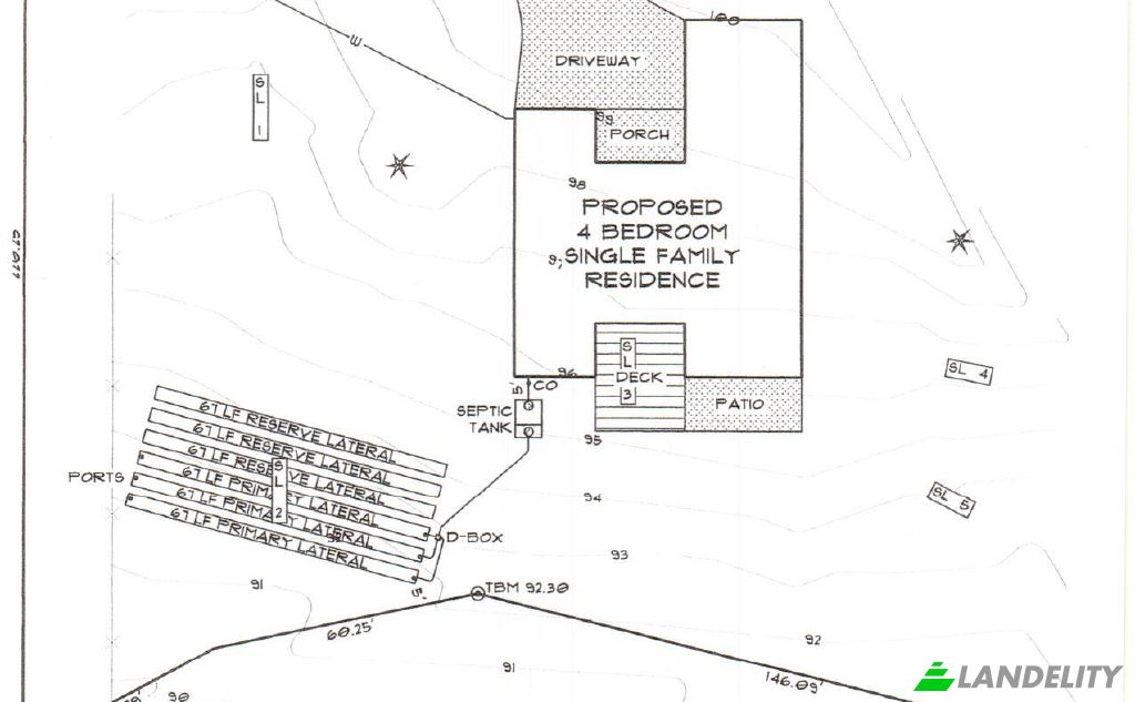
Here is your chance to build your custom dream home on a spectacular lot with building plans for a ~3,900 SF home! Located less than 5 minutes to the Purdy bridge, in elegant gated Somerford Estates. Here you will find this private and level building site within a 9-lot community of high-end homes. Utilities are all on the lot. This is a must-see location with gorgeous sprawling surroundings ~ Don't miss your chance to call this home!! 9110 158th St Ct NW, Gig Harbor, WA 98329 MLS # 1913777 Lot Size: 1.162 ac/50,620 sf