







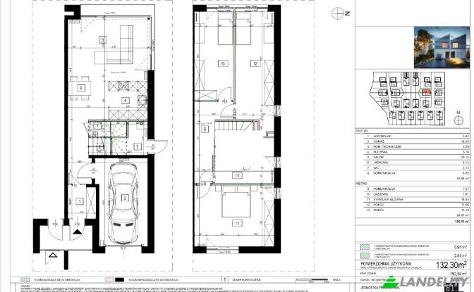
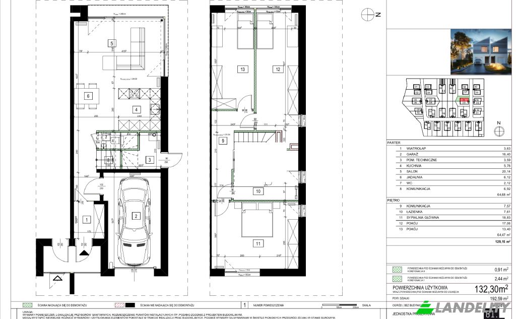
House: semi-detached single-family house Size: 132m2 - price :1,244,000 PLN - developer version without finished interior 132 m2 - price 1.569.059 PLN - furnished apartment Rooms: 4 Completion of the investment: ready Location: Warsaw Ursynów remarks: purchase for foreigners: no permit required We offer you a brand new, newly finished house in Warsaw. The house is located in a new housing estate. The estate has a very modern design. Each house has four rooms including a living room with a kitchenette. On the upper level we have three bedrooms with bathrooms and a dressing room. We have included the proposed two versions of the room layout. On the lower floor we have a living room with kitchen and toilet. We also have a garage and a technical room. In front of the house we have a landscaped garden. The house is equipped with recuperation and the possibility of installing photovoltaic panels. The utilities are electricity, mains water and city sewer. Heating of the house - city gas. In the living room we have high-end, triple-glazed, panoramic windows that connect the living room with the garden. The upper windows are also high, making the house well lit. In the garden we have a rainwater tank installed and the water can be used to water the garden. The estate is fenced, with a remote control gate. The houses are equipped with video intercoms. Next to the estate we have two small lakes, unobstructed sunsets during walks. A short walk away we have Kabaty Forest, a place where local residents spend time with their families, doing jogging, Nordic walking and other sports. For families with children, we recommend the nearby schools, where the nearest one is just 10 minutes on foot or a few minutes by car. We also have kindergartens and a slightly further international excellent school and sports centre. There is a medical clinic a few minutes' drive away. The nearest shop is a 3-minute walk, the shopping centre a 5-minute drive. What will be important for those who travel frequently, from under the estate we have the possibility of a quick drive to the airport - without having to stand in traffic jams. We have a good entrance to the newly built S7 route, or with public transport buses we can go directly to the metro station and the centre. The bus stop is about 10 minutes away on foot. If you prefer to travel by train, we also have a Warsaw suburban railway station close by. NOW WE ALSO HAVE FOR SALE two houses finished inside - ready for you to bring your furniture and move in. We can also supply moving furniture on your request. The furniture we have is of Polish designers' designs, great quality and can be seen in the showroom for example. If you wish to finance your investment with a loan, please contact us - the advisor we cooperate with will help you choose the optimal financing.